Hiltner Design
graphicfurniturearchitectureillustrationother stufflinks













© 2006 Henry Hiltner

contact



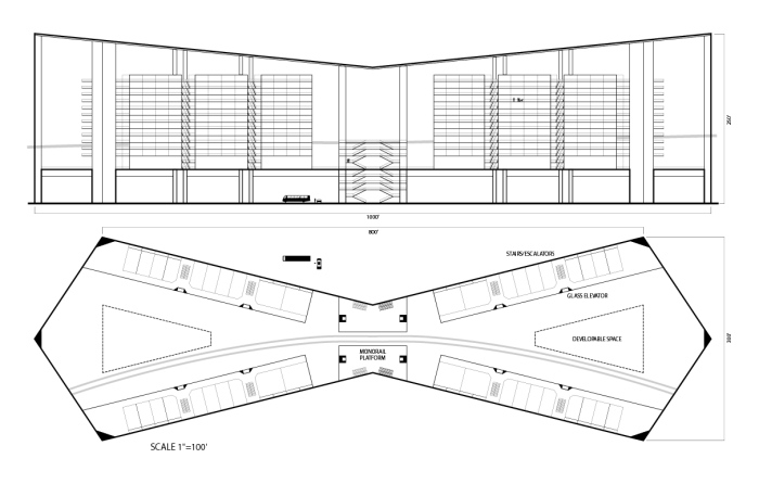
Proposal for an infinitely scalable hive community as an open or closed system,
with internal developable space and a complete maglev transport
connecting all sections in any configuration.